Projekte
Profil
Kontakt
Christina Martin
Escuela Urbana
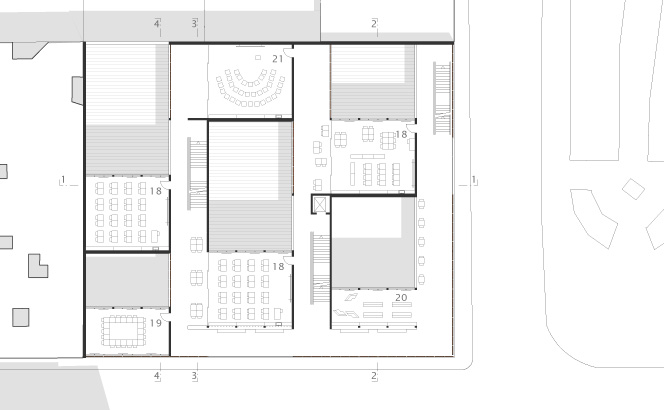
18 Stammklassen
19 Konferenz- und Gruppenraum
20 Bibliothek
21 Fachklasse Musik
Modellphoto
ma4
| Prof. Prof. h.c. H.Bühler | Entwerfen
| Prof. M.Schanné | Baukonstruktion
| Masterthesis