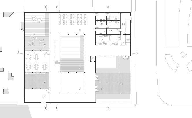
Escuela Urbana
01 Haupteingang
02 Foyer, Aula und Multifunktionsraum
03 Innenhof
04 Werkstatt
05 Innenhof Werkstatt
06 Lager- und Maschinenraum
07 Sanitäranlagen Schüler
08 Mensa
09 Küche, Vorbereitung, Ausgabe, Rückgabe
10 Personalraum
11 Lagerraum
Grundriss EG
| ma4 | | Prof. Prof. h.c. H.Bühler | Entwerfen |
| | Prof. M.Schanné | Baukonstruktion | |
| | Masterthesis |
